
秋風送爽,丹桂飄香。10月10日 ,由我司組織的裝配式地下連續墻(TAD工法)交流會在華鐵創業大樓一號樓會議室順利召開,會議邀請到了浙江省建筑設計研究院劉興旺大師、浙江大學建筑設計研究院有限公司干鋼大師、浙江工業大學工程設計集團有限公司單玉川大師蒞臨指導,會議結束后,各專家學者前往正在施工的華鐵創業大樓3號樓改擴建工程項目和正在開挖的德信空港城TAD工法項目進行了學習參觀。
專題介紹

為了更好的介紹TAD工法的研發歷程和技術特點,便于現場參觀針對性更強,我們邀請了浙江省建筑設計研究院李瑛博士、浙江大學建筑設計研究院有限公司陳赟院長、浙江大學丁智教授和建華建材集團的金忠良所長分別對TAD產學研及規范編制情況、德信空港城項目基坑設計與工程實踐、TAD信息化施工和監測及計算軟件編制情況、TAD預制裝配式地下連續墻構件深化設計及生產制作工藝研究進行了專題技術匯報。
▲浙江省建筑設計研究院李瑛博士介紹“TAD產學研及規范編制情況”

▲浙江大學建筑設計研究院有限公司陳赟院長介紹“德信空港城項目基坑設計與工程實踐”

▲浙江大學丁智教授介紹“TAD信息化施工和監測及計算軟件編制情況”

▲建華建材集團金忠良所長介紹“TAD預制裝配式地下連續墻構件深化設計及生產制作工藝研究”
匯報結束后,各專家學者展開了熱烈的交流和討論,浙江省建筑設計研究院劉興旺大師、浙江大學建筑設計研究院有限公司干鋼大師和浙江工業大學工程設計集團有限公司單玉川大師對TAD工法研制試驗應用所取得的成果表示充分肯定,對TAD工法之后的發展方向提出了寶貴指導意見。

▲浙江省建筑設計研究院劉興旺大師發表講話

▲浙江大學建筑設計研究院有限公司干鋼大師發表講話

▲浙江工業大學工程設計集團有限公司單玉川大師發表講話
現場觀摩
下午三點,現場觀摩學習活動接力開展。根據現場施工實際情況安排,依次參觀了正在進行TAD工法施工的華鐵三號樓改擴建工程項目和正在開挖的德信空港城TAD工法應用項目現場。
華鐵三號樓改擴建工程項目采用渠式切割裝配式地下連續墻(TAD工法)結合一道型鋼組合式內支撐,采用渠式切割水泥土連續墻作為止水帷幕,臨邊深坑位置設置被動區加固,其中TAD工法預制樁體截面為900mm*400mm,插入深度12m。


▲現場照片
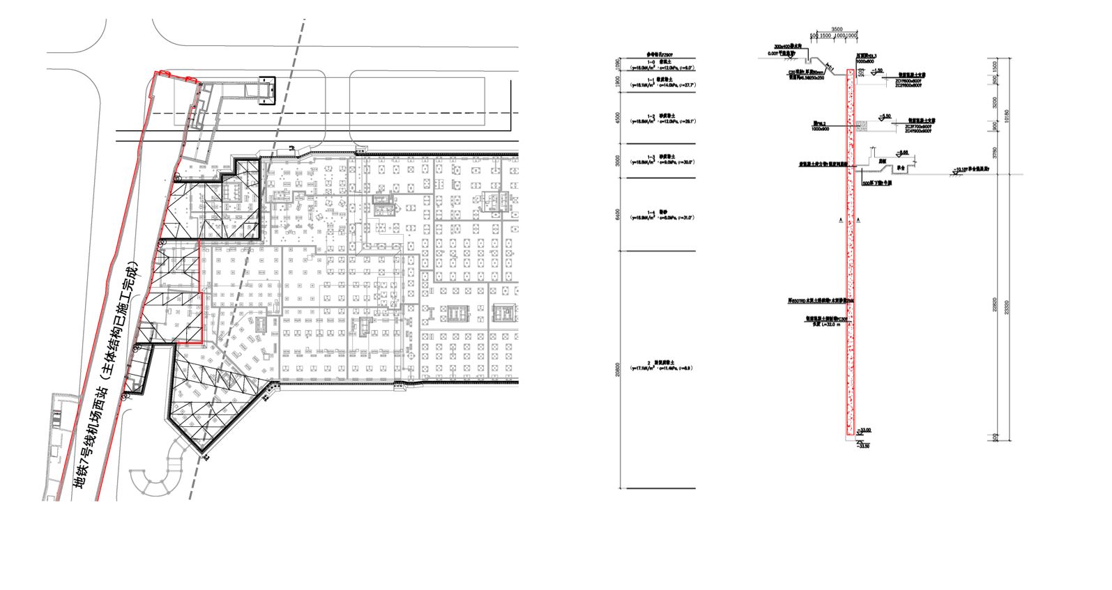
隨后專家和學者前往第二站德信空港城TAD工法應用項目進行參觀,本項目位于杭州市蕭山區,東側為蕭山國際機場,北靠機場高速,西側為杭州錢江電氣股份有限公司及在建地鐵7號線機場西站(目前主體結構已施工完成)。工程建設總建筑面積377523.08m2,其中地上總建筑面積257600.77m2,地下總建筑面積119922.31m2。

基坑采用鉆孔灌注樁排樁加鋼筋混凝土內支撐、鉆孔灌注樁加可回收式擴大頭預應力錨索、鉆孔灌注樁加斜撐、放坡及土釘墻的圍護形式,包括渠式切割裝配式地下連續墻(簡稱TAD)加鋼筋混凝土支撐或鋼管支撐。

TAD工法自2018年11月正式投入研發試驗,經過近兩年時間的研發與試驗,于2020年4月在杭州德信空港城進行了首次項目應用。該項目TAD工法預制樁體截面為600mm*900mm,插入深度最深為36m。超大、超深、超重樁體逐一嚴密插入是本項目的重大施工技術難題,經過充足的施工準備及嚴格的施工過程控制,TAD工法在該項目應用中達到了預期的設計要求,取得圓滿成功。




▲現場照片
伴隨著落日的余輝,本次裝配式地下連續墻(TAD工法)交流會圓滿結束,專家和學者們在項目現場進行了熱烈的討論與交流,并對裝配式地下連續墻的支護效果表示了充分肯定。
-*-